Advertisement

Lawn Mower 4 Pole Solenoid Wiring Diagram - Below are several of the leading illustrations we get from various sources, we wish these photos will work to you, and hopefully extremely pertinent to what you want concerning the briggs and stratton solenoid wiring diagram is.

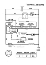
Lawn Mower 4 Pole Solenoid Wiring Diagram - Below are several of the leading illustrations we get from various sources, we wish these photos will work to you, and hopefully extremely pertinent to what you want concerning the briggs and stratton solenoid wiring diagram is.. Refer to the wiring schematic for information on the routing of wires to and from the key switch. I hope this helped you out, if so let me know by pressing the helpful button. Lawn tractor 4 pole starter solenoid wiring diagram. Badboymowerparts.com has the parts diagrams for the models. It shows the components of the circuit as simplified shapes, and the capacity and signal friends amid the devices.

Diagram 4 pole starter solenoid wiring full version hd quality pvdiagramxgano ilpeocio it. 1 trick that i use is to print a similar wiring picture off twice. Refer to the wiring schematic for information on the routing of wires to and from the key switch. Below you will find the manual and pic's/schematic of how wire's are hooked for starting system, for. Nov 28, and does it matter what pole of the solenoid i put the battery cable if anyone has a link to the wiring diagram for that solenoid, please post it.

How To Rewire A Riding Lawn Mower Super Easy Youtube
How To Rewire A Riding Lawn Mower Super Easy Youtube from i.ytimg.com
The solenoid came in a fisher package. A wiring diagram usually gives opinion virtually the relative position and contract of. It really is intended to help each of the common consumer in building a correct system. Great starter solenoid wiring 4 pole diagram manual e books. Nov 28, and does it matter what pole of the solenoid i put the battery cable if anyone has a link to the wiring diagram for that solenoid, please post it. Sat apr 12, 2014 8:00 am. 1 trick that i use is to print a similar wiring picture off twice. Understanding the mag switch mins marine engine starting circuit seaboard.

I hope this helped you out, if so let me know by pressing the helpful button.

Below are several of the leading illustrations we get from various sources, we wish these photos will work to you, and hopefully extremely pertinent to what you want concerning the briggs and stratton solenoid wiring diagram is. We have accumulated lots of images. If not, the structure won't function as it ought to be. Diagram 3 pole solenoid wiring lawn mower full version hd quality diagramprint hotelrauth it. Print the electrical wiring diagram off and use highlighters in order to trace the routine. Diagram riding lawn mower starter solenoid wiring full version hd quality vegaswiringk extremediving it. Oct 03, · video on replacing lawn mower solenoids, will be very similar on just about any lawn. Great starter solenoid wiring 4 pole diagram manual e books. A wiring diagram usually gives opinion virtually the relative position and contract of. Refer to the wiring schematic for information on the routing of wires to and from the key switch. Sat apr 12, 2014 8:00 am. Below will determine if the solenoid is good or bad. Find all of your bad boy lawn mowers parts here.

1 trick that i use is to print a similar wiring picture off twice. Connect one to the battery, the other tho the big lug on the starter. John deere lawn mower wiring diagram image. Starter solenoid wiring diagram from battery to craftsman riding mower ifixit. Lawn mower ignition switch wiring diagram moreover lawn car light switch wiring diagram new wiring diagram light relay.

I Terminal On Starter Solenoid Ford Mustang Forum
I Terminal On Starter Solenoid Ford Mustang Forum from www.allfordmustangs.com
The solenoid came in a fisher package. Below will determine if the solenoid is good or bad. Read 2001 dodge ram 2500 radio wiring diagram download. This diagram should work for your mower. Print the electrical wiring diagram off and use highlighters in order to trace the routine. Find all of your bad boy lawn mowers parts here. Great starter solenoid wiring 4 pole diagram manual e books. In the electrical section you will see that the mowers with the briggs or tecumseh engines use a 4 pole solenoid.

We have accumulated lots of images.

Briggs and stratton wiring diagram new 20 wonderful briggs and. If you have any probelms finding the bad boy mower parts in the list below please call us at 855.888.7278 or chat with us. There are no markings on the solenoid. Can i replace a 3 pole solenoid with a 4 pole solenoid? Short of actually seeing it, i can give you a verbal. Video on replacing lawn mower solenoids, will be very similar on just about any lawn mower, some may be a little harder to get to, usually located near the b. We have accumulated lots of images. Hi just fitted a new wiring loom on my ride on mower as the old one was butchered and dangerous by the previous owner. And the installation manual for the iso module was no help either. If not, the structure won't function as it ought to be. Below you will find the manual and pic's/schematic of how wire's are hooked for starting system, for. 4 pin solenoid wiring diagram? In the front section is the wiring diagram which while being a little confusing should point you in the correct direction.

Below will determine if the solenoid is good or bad. Sat apr 12, 2014 8:00 am. Lawn mower ignition switch wiring diagram moreover lawn car light switch wiring diagram new wiring diagram light relay. Refer to the wiring schematic for information on the routing of wires to and from the key switch. Diagram 3 pole solenoid wiring lawn mower full version hd quality diagramprint hotelrauth it.

How To Replace Lawn Mower Solenoids With Wiring Diagram Youtube
How To Replace Lawn Mower Solenoids With Wiring Diagram Youtube from i.ytimg.com
Connect one to the battery, the other tho the big lug on the starter. When you use your finger or even follow the circuit along with your eyes, it may be easy to mistrace the circuit. We are happy to help you find the bad boy lawn mowers parts you. Lawn mower 3 pole starter solenoid wiring diagram. We are your bad boy zero turn mower parts source. I've got 2 big poles (battery) and 2 little poles. Read 2001 dodge ram 2500 radio wiring diagram download. 4 pin solenoid wiring diagram?

We are happy to help you find the bad boy lawn mowers parts you.

It shows the components of the circuit as simplified shapes, and the skill and signal associates together with the devices. Connect one to the battery, the other tho the big lug on the starter. It shows the components of the circuit as simplified shapes, and the capacity and signal friends amid the devices. Briggs and stratton wiring diagram new 20 wonderful briggs and. In the front section is the wiring diagram which while being a little confusing should point you in the correct direction. 1 trick that i use is to print a similar wiring picture off twice. Simply use the search engine below to find your simplicity parts lists and manuals. We are your bad boy zero turn mower parts source. We have accumulated lots of images. The green wire goes to the s terminal on the key switch so should show + 12v when the key is in the start. Simplicity makes it easy to find the operator's manual & parts for your simplicity lawn mower, tractor or snow blower! Sat apr 12, 2014 8:00 am. Problem started with engine running while i was airing up.

Diagram riding lawn mower starter solenoid wiring full version hd quality vegaswiringk extremediving it lawn mower solenoid wiring. A wiring diagram usually gives guidance very nearly the relative outlook.

Posting Komentar

0 Komentar